Не упусти свой шанс! Последние акции от застройщиков  ▼

Продается студия, Московская ул., К1

6 900 000 Р

Долгопрудный г. (Долгопрудный гор. округ)

Московская ул.К1

Дата публикации: 19 марта 2026

Дата обновления: 5 мая 2026

Телефон: 
Показать телефон

+7 (499) 372-92-13

Агентство:  МИЭЛЬ

Название: ЖК "Бригантина"

От застройщика: 5 квартир в продаже

Этаж: 8 / 23

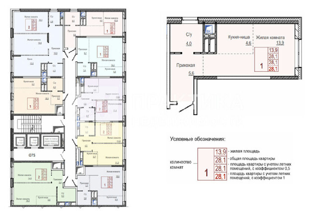
Общая: 28,1 м2

Жилая: 13,9 м2

Кухня: 4,6 м2

Комнаты: не указано

Балкон/лоджия: не указано

Лифт: есть лифт

Окна: окна на улицу

Санузел: совмещенный

Мусоропровод: не указано

Состояние квартиры: требуется ремонт

Тип дома: не указано

Год постройки: 2025

Территория: не указано

Парковка: не указано

Статус сделки: продажа

Сделка: прямая продажа

Собственность: не указано

Основание права собственности: не указано

Описание

Код объекта: 2081021.Квартира в новом доме, ЖК "Бригантина". Условия продажи Полная стоимость в договоре, свободная продажа. Взрослый собственник. Без обременения. Переуступка. Описание квартиры Планировка евро. Кухня-гостиная, совмещённый санузел, широкая прихожая - эргономично, современно!Высокие потолки 2,8 метра. без мебели.Тихая сторона, виды - на воду, чуть дальше - сквер и набережная канала им. Москвы, реку видно, летом пароходы будут проплывать мимо ваших окон.Прогулочная зона с дорожками и скамейками, спортивные и детские площадки - все уже есть и благоустроено. Дом и двор "Бригантина" это монолитные дома, широкие улицы и дворы, качественное благоустройство общественных пространств, изобилие магазинов, кафе, предприятия сферы услуг, торговли - на первых этажах вдоль проспекта открыты и процветают; работают детский сад и школа. В домах сквозные подъезды на уровне земли, с удобной навигацией, предусмотрено место для консьержа.Из квартиры можно спуститься в подземный паркинг - места у застройщика еще есть. Управляющая компания следит за порядком - на территории и в доме чистота. Транспортная доступность Автобусное сообщение по городу и до Москвы:2 км и 24 минуты пешком до станции "Водники" МЦД-1;8 км до метро "Ховрино" - 20 минут8 минут транспортом до метро "Физтех". Инфраструктура рядом Вблизи жилого комплекса располагается обустроенный парк в рамках программы "Парки Подмосковья" и канал имени Москвы. Покупателю в подарок - правовой сертификат, помощь в одобрении ипотеки.Переуступка. Работать с МИЭЛЬ выгодно и надёжнопокупателю выдаётся Правовой сертификат, гарантирующий юридическую чистоту объекта;возможна ипотека с особыми условиями для клиентов МИЭЛЬ от банков-партнёров, работаем с любыми источниками финансирования (материнский капитал, военный сертификат и т.д.);бонусы по партнёрским программам МИЭЛЬ на товары и услуги от известных брендов.

Квартира на карте

ПанорамыКарта
Спецпредложения
Добавить объявление